样式:通过式、落底式。
用途:铝合金材料的固熔、时效处理。

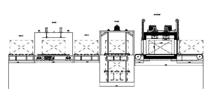
生产线 |
||
生产线组成 |
1、铝合金固熔炉 |
1台 |
2、淬火水槽装置 |
1台 |
|
3、铝合金时效炉 |
1台 |
|
4、转运小车 |
1台 |
|
5、生产线操作控制系统 |
1套 |
|
Ø 炉温均匀性在±5℃内。
Ø 辊棒式结构,变频调速传动,速度可依据工艺调整。
Ø 工件入水速度,可以控制在15-20S内。
Ø 整条生产线全部动作过程皆由PLC完成,自动化程度高,操作简便,节省人力。

型式Type |
T-400 |
T-600 |
T-1000 |
T-1500 |
使用温度 Working Temperature |
固熔炉450℃——600℃,时效炉150℃——270℃ |
|||
炉温均匀性 |
≤±5℃ |
|||
加热方式 Heating Method |
管状加热器加热 |
|||
加热功率 Heating Capacity |
74KW/36KW |
120KW/60KW |
150KW/72KW |
180KW/88KW |
炉内有效尺寸(LXWXH) Effective Dimensions |
1250X750X800 |
1250X900X800 |
1250X1100x1000 |
1300X1250X1200 |
处理能力 Treating Capacity |
400KG |
600KG |
1000KG |
1500KG |